Pont Saint-Jean

Maitre d'ouvrage : Société Matexi 

Localisation : Rue du Pont Saint-Jean à Wavre

Date : Permis octroyé . En attente de réalisation.

Surface : 1800 M²

Objet : Conception d'un immeuble à appartements avec parking ainsi que d'un logement individuel

Budget : ± 4.185.000,00 € HTVA

 

Dans la rue du Pont Saint-Jean à Wavre se trouve un bâtiment dont la fiche patrimoine nous donne cette indication : imposante habitation de deux niveaux et de sept travées, encore enduite et peinte, probablement du 19e siècle. Intéressante pour sa volumétrie, la conservation de son enduit, ses percements sobres, rectangulaires au rez-de-chaussée, bombés à l'étage.

Ce bâtiment, associé à l’arrière et sur le côté à une activité industrielle qui a cessé depuis longtemps, a subi d’énormes transformations qui ont lourdement modifié la structure et le plan originel démontrant une impossibilité de récupération et de mise en conformité avec les règles d’habitabilité actuelles.

Après la rédaction d’un rapport et d'une note historique exposés à l’AWAP et une concertation avec le Service Patrimoine de la Région, il a été entendu qu’une démolition s’imposait pour autant que le nouvel édifice consacré à du logement principalement respecte l’architectonique et s’inspire de la morphologie de l’existant.

Pour les autres parties, une architecture contemporaine est dessinée.

PLAN DE SITUATION

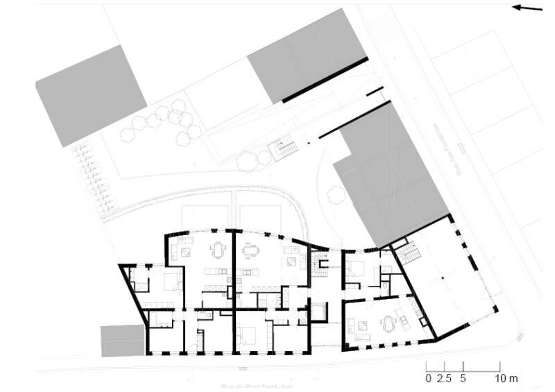
RDC

R+1

R-1

COUPE EE

COUPE AA

ÉLÉVATION EXISTANTE RUE DU PONT SAINT-JEAN

ÉLÉVATION RUE DU PONT SAINT-JEAN