Centre sportif de Walhain

Maitre d'ouvrage : Commune de Walhain

Localisation : Rue Chapelle Sainte-Anne, Walhain

Date : Le Permis d’Urbanisme a été octroyé le 9 juillet 2024. 

Surface : 2 276 M²

Objet : Rénovation et agrandissement du centre sportif

Budget : 3.342.745,00 € HTVA

 

Ce projet de complexe sportif est situé au cœur d’un vaste site récréatif et sportif qui est aussi la porte d’entrée Est du village.

L'enjeu de cette intervention de rénovation et d'agrandissement était de valoriser l’activité sportive au cœur du village.

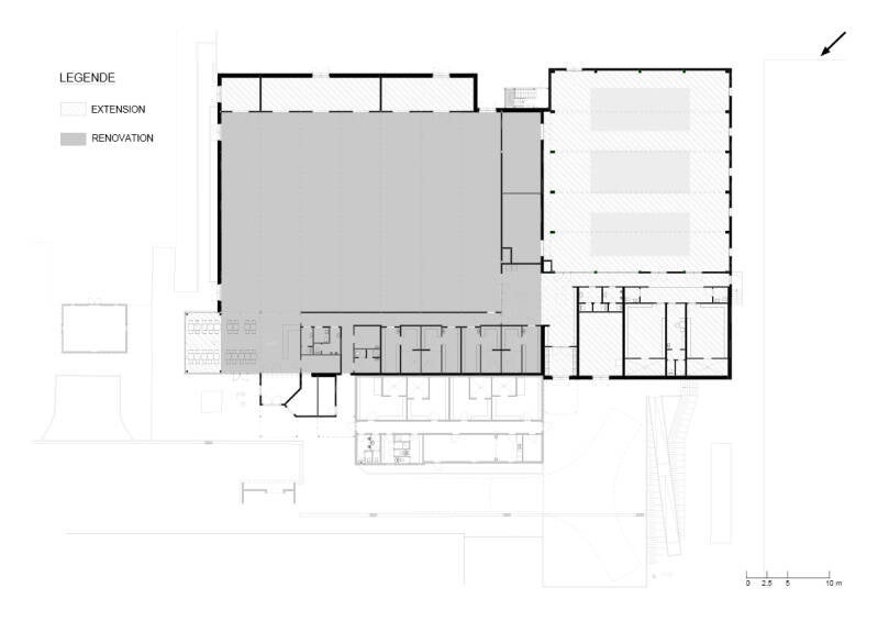
C'est pour cette raison que la seconde salle prend la forme d'un volume secondaire mis à distance du principal par des rangements, en vue de permettre un phasage des travaux. Concernant l'espace existant, comprenant la cafétéria, les vestiaires et la "grande salle", cette dernière était dépourvue de lumière naturelle directe. Dans l'intention d'y en amener sans commencer à découper les façades, un cube translucide en polycarbonate permettant de filtrer la lumière et ne pas gêner les sportifs a été mis en place, couronnant le volume de manière harmonieuse et redessinant le bâtiment dans le paysage urbain. Enfin, la cafétéria a été prolongée par un volume vitré afin de la doter d'un espace généreux et tourné vers l'extérieur.

PLAN DE SITUATION

COUPE DD'

COUPE BB'

RDC 

ÉLÉVATION SUD-OUEST 

ÉLÉVATION NORD-EST